SV2 (CV2) Inox/Black/Alum 90
Внутрішньопідлоговий водяний конвектор SV2 (CV2) Inox / Black 90
ОСНОВНІ ХАРАКТЕРИСТИКИ:
- теплова потужність конвектора Carrera SV2 (CV2) 90 збільшена за рахунок установки додаткового теплообмінника в поєднанні з модульним вентилятором DC24 діаметром 43мм
- використовується як основне джерело опалення в приміщеннях з великою кількістю скління і великими тепловими втратами
SV2 Inox (зі знімною рамкою)
- Корпус з нержавіючої сталі
- примусова конвекція
- Мідно-алюмінієвий теплообмінник
- Касетний тип кріплення теплообмінника
- Комплект S - решітка зі знімною рамкою
- Конвектор C - решітка без рамки
- Тангенціальним вентилятором DC24
- Комплект S Hi-Tech (решітка + знімна рамка
- Отвори для підключення до системи опалення
- захисні кришки
- закріплюють кронштейни
SV2 Black (зі знімною рамкою)
- Корпус - пофарбований в чорний колір метал
- примусова конвекція
- Мідно-алюмінієвий теплообмінник
- Касетний тип кріплення теплообмінника
- Комплект S - решітка зі знімною рамкою
- Конвектор C - решітка без рамки
- Тангенціальним вентилятором DC24
- Комплект S Hi-Tech (решітка + знімна рамка
- Отвори для підключення до системи опалення
- захисні кришки
- закріплюють кронштейни
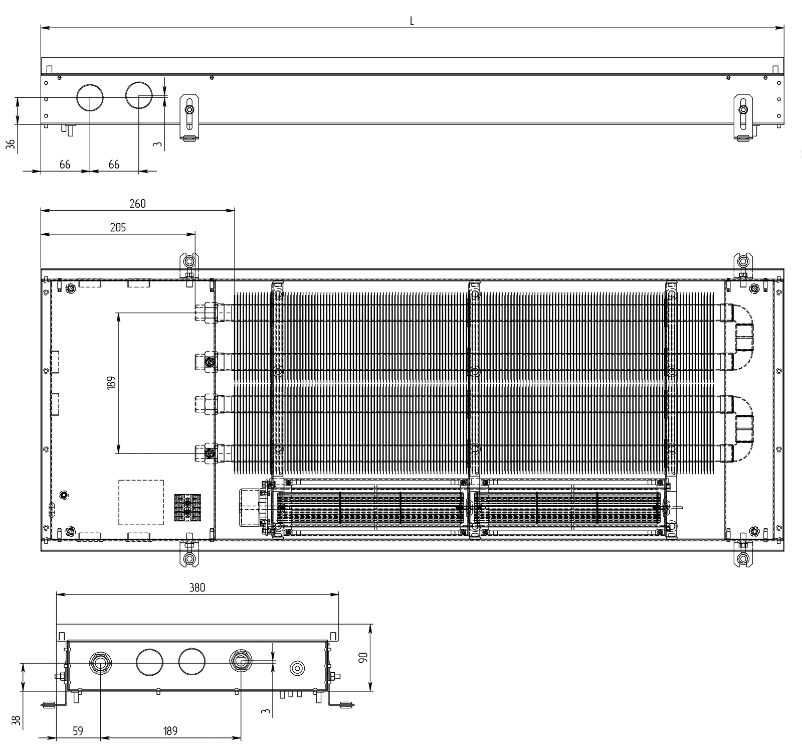
| конвектор | Ширина | 380 мм |
|---|---|---|
| Висота | 90 мм | |
| довжина | 1000 - 3000 мм, з кроком 250 мм | |
| Діапазон регулювання висоти установки |
0 - 40 мм | |
| решітка тип | поперечна, поздовжня | |
| решітка матеріал | анодований алюміній, дерево | |
| робочі умови |
підключення теплоносія | G 1/2 " |
| Оптимальна робоча температура |
40 - 90 ° С | |
| Максимальна робоча температура |
105 ° С | |
| Робочий тиск | 10 бар | |
| Випробувальний тиск | 16 бар |
| CSV2 90 | Теплова потужність, електроспоживання, шумові показники | |||||||||||||||||||||||
| Швидкість вентилятора,% | Температура теплоносія, ° С | Довжина конвектора, мм | ||||||||||||||||||||||
| 1000 | 1250 | 1500 | 1750 | 2000 | 2250 | 2500 | 2750 | 3000 | ||||||||||||||||
| Електроспоживання, Вт | 10,0 | 10,0 | 10,0 | 10,0 | 10,0 | 20,0 | 20,0 | 20,0 | 20,0 | |||||||||||||||
| 30% - 3V | Шумові показники, дБ | 19,8 | 20,2 | 20,6 | 21,9 | 21,9 | 23,2 | 23,6 | 24,0 | 24,3 | ||||||||||||||
| 85-75 ° С | 767 | +1064 | 1360 | тисячі шістсот п'ятьдесят сім | +1953 | 2254 | 2551 | 2847 | 3144 | |||||||||||||||
| 65-55 ° С | 583 | 808 | тисяча тридцять три | +1259 | 1484 | 1713 | 1938 | 2163 | 2389 | |||||||||||||||
| 45-35 ° С | 335 | 464 | 593 | 723 | 852 | 983 | 1113 | тисячу двісті сорок дві | 1371 | |||||||||||||||
| 50% - 5V | Шумові показники, дБ | 25,4 | 26,3 | 27,5 | 27,8 | 27,8 | 28,1 | 28,3 | 28,6 | 29,0 | ||||||||||||||
| 85-75 ° С | 1169 | тисяча шістсот двадцять одна | 2073 | 2525 | 2977 | 3436 | 3888 | 4340 | 4792 | |||||||||||||||
| 65-55 ° С | 816 | +1132 | 1 447 | +1763 | 2078 | 2398 | 2714 | 3029 | 3345 | |||||||||||||||
| 45-35 ° С | 455 | 631 | 807 | 983 | 1159 | 1338 | 1514 | 1690 | 1 866 | |||||||||||||||
| 70% - 7V | Шумові показники, дБ | 30,9 | 31,6 | 32,0 | 32,3 | 32,3 | 33,2 | 33,6 | 33,6 | 34,3 | ||||||||||||||
| 85-75 ° С | одна тисячі триста сімдесят п'ять | 1906 | 2437 | 2969 | 3500 | 4040 | 4571 | 5102 | 5634 | |||||||||||||||
| 65-55 ° С | 902 | 1250 | 1599 | 1947 | 2296 | 2650 | 2999 | 3347 | 3696 | |||||||||||||||
| 45-35 ° С | 512 | 710 | 908 | 1106 | 1304 | 1505 | 1703 | 1901 | 2099 | |||||||||||||||
| 100% - 10V | Шумові показники, дБ | 40,5 | 42,5 | 43,0 | 44,7 | 44,7 | 45,0 | 45,2 | 45,9 | 46,0 | ||||||||||||||
| 85-75 ° С | 1 527 | 2117 | 2708 | 3298 | 3888 | 4488 | 5078 | 5668 | 6258 | |||||||||||||||
| 65-55 ° С | 1025 | тисяча чотиреста двадцять-одна | 1818 | 2214 | 2610 | 3013 | 3409 | 3805 | 4201 | |||||||||||||||
| 45-35 ° С | 576 | 799 | 1022 | 1244 | 1467 | 1693 | 1916 | 2139 | 2361 | |||||||||||||||
* Дані по тепловій потужності вказані при t ° приміщення 20 ° С і швидкості обертання вентиляторів 2300об. / Хв.
КОМПЛЕКТИ РЕШІТОК
- HI-TECH
- поперечна
- Можливо пофарбувати в будь-який колір палітри
- RAL за індивідуальним замовленням
- WR Дерево поперечна
рамка
ZN - рамка забезпечує стандартне закриття стику між покриттям підлоги і конвектором
ZL - рамка забезпечує збільшена відстань перекриття стику між підлогою та конвектором
ВАРІАНТИ КОРПУСУ конвектори









