Підлогові
Підлогові водяні конвектори
Загальний опис
Підлогові конвектори водяного опалення Carrera надають можливість рівномірного обігріву приміщень будь-яких розмірів. Підлогове опалення здійснюється за допомогою розміщення в приміщенні декількох підлогових радіаторів, з'єднаних між собою за паралельною схемою. Таким чином, покриття для водяні конвектори виділяють тепло по всьому периметру приміщення, і, за рахунок природної циркуляції повітря, тепле повітря рівномірно розподіляється по всій висоті приміщення. При цьому вони не сушать повітря, зберігаючи необхідну вологість.
Модельний ряд
Підлогові конвектори Carrera представлені моделями з одним або двома теплообмінниками, і працюють за принципом природної конвекції.
конструкція
Всі підлогові радіатори водяного опалення ТМ Carrera складаються зі сталевої основи, на який кріпиться мідно-алюмінієвий теплообмінник, кожуха і декоративної закриває решітки. Кожух конвектора, а також решітка можуть бути виконані в будь-якому кольорі палітри RAL, що дозволяє зробити підлоговий конвектор частиною інтер'єру. До того ж, підлогові системи опалення мають низьку тепловою напруженістю і дозволяють розміщувати елементи декору та меблі безпосередньо біля самого конвектора.
Доставка підлогових конвекторів проводиться по всій Україні. Для отримання інформації про придбання конвекторів Carrera у Вашому місті, звертайтеся, будь ласка, в наш офіс.
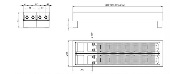
Підлоговий конвектор FRH


| конвектор | Ширина | 148 мм |
|---|---|---|
| Висота | 175 мм | |
| довжина | 1000 - 2500 мм з кроком 250 мм. |
|
| решітка тип | поздовжня | |
| решітка матеріал | алюміній | |
| робочі умови |
підключення теплоносія |
G 1/2 " |
| Оптимальна робоча температура |
40 - 90 ° С | |
| Максимальна робоча температура |
105 ° С | |
| Робочий тиск | 10 бар | |
| Випробувальний тиск | 16 бар |

| конвектор | теплоносій | ||
|---|---|---|---|
| 90/70 ° С | 80/60 ° С | 55/35 ° С | |
| Теплова потужність, Вт | |||
| 1000 | 722 | 538 | 176 |
| 1250 | 991 | 739 | 242 |
| 1500 | тисяча двісті шістьдесят один | 940 | 308 |
| 1750 | 1536 | 1145 | 375 |
| 2000 | 1811 | 1350 | 442 |
| 2250 | 2086 | 1555 | 509 |
| 2500 | 2359 | тисяча сімсот п'ятьдесят дев'ять | 576 |
Конвектор FR2H

| конвектор | Ширина | 290 мм |
|---|---|---|
| Висота | 175 мм | |
| довжина | 1000 - 2500 мм з кроком 250 мм. |
|
| решітка тип | поздовжня | |
| решітка матеріал | алюміній | |
| робочі умови |
підключення теплоносія |
G 1/2 " |
| Оптимальна робоча температура |
40 - 90 ° С | |
| Максимальна робоча температура |
105 ° С | |
| Робочий тиск | 10 бар | |
| Випробувальний тиск | 16 бар |

| конвектор | теплоносій | ||
|---|---|---|---|
| 90/70 ° С | 80/60 ° С | 55/35 ° С | |
| Теплова потужність, Вт | |||
| 1000 | 1109 | 812 | 248 |
| 1250 | 1516 | 1110 | 339 |
| 1500 | 1933 | 1 415 | 433 |
| 1750 | 2356 | 1725 | 527 |
| 2000 | 2784 | 2038 | 623 |
| 2250 | 3204 | 2346 | 717 |
| 2500 | 3626 | 2655 | 812 |
Конвектор FRH Stone
| конвектор | Ширина | 170 мм |
|---|---|---|
| Висота | 185 мм | |
| довжина | 1000 | |
| робочі умови |
підключення теплоносія |
G 1/2 " |
| Оптимальна робоча температура |
40 - 90 ° С | |
| Максимальна робоча температура |
105 ° С | |
| Робочий тиск | 10 бар | |
| Випробувальний тиск | 16 бар |