Цокольні
Цокольні водяні конвектори
Загальний опис
Нова розробка від компанії Carrera - цокольний конвектор Carrera DV - це сучасний опалювальний прилад, що володіє широкими можливостями для монтажу. Його встановлюють в ступені, під вікна, в меблі (гардеробну) або просто в стіну, за умови наявності спеціальної ніші. Обігрів приміщення відбувається рівномірно і підтримується на необхідному рівні завдяки примусовій конвекції.Модельний ряд
Цокольні конвектори водяного опалення Carrera представлені двома моделями - DV-80 і DV-105. Розрізняються конвектори по висоті - 80 і 105 мм відповідно. Довжина виробу варіюється від 750 мм до 2000 з кроком 250 мм. Це дає широкі можливості в ефективному облаштуванні опалення приміщення.
Конструкція
Цокольні радіатори водяного опалення Carrera складається з металевого корпусу чорного кольору, теплообмінника і тангенціального вентилятора, а також зовнішньої решітки кольору «сатин». При бажанні замовника корпус радіатора і решітку можна пофарбувати в будь-який колір з палітри RAL. Решітка приладу не нагрівається вище 30⁰С, тому загроза псування меблів або елементів декору приміщення, притулених до радіатора, відсутня.
Купити цокольний конвектор Carrera DV-80 і DV-105 можна звернувшись в наш офіс або зателефонувавши за контактними телефонами, розміщеним на сайті.
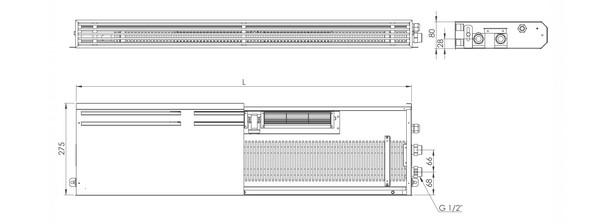
Цокольний конвектор DV 80


| Конвектор | Ширина | 275 мм |
|---|---|---|
| Висота | 80 мм | |
| довжина | 750 — 2000 мм з кроком 250 мм. |
|
| решітка тип | поздовжня | |
| решітка матеріал | алюміній | |
| Робочі умови |
Підключення теплоносія |
G 1/2″ |
| Оптимальна робоча температура |
40 — 90°С | |
| Максимальна робоча температура |
105°С | |
| Робочий тиск | 10 бар | |
| Випробувальний тиск | 16 бар |

| Конвектор | теплоносій | ||
|---|---|---|---|
| 90/70°С | 80/60°С | 55/35°С | |
| Теплова потужність, Вт | |||
| 750 | 715 | 515 | 148 |
| 1000 | 980 | 706 | 203 |
| 1250 | 1340 | 965 | 277 |
| 1500 | 1713 | 1234 | 354 |
| 1750 | 2088 | 1504 | 432 |
| 2000 | 2462 | 1773 | 509 |
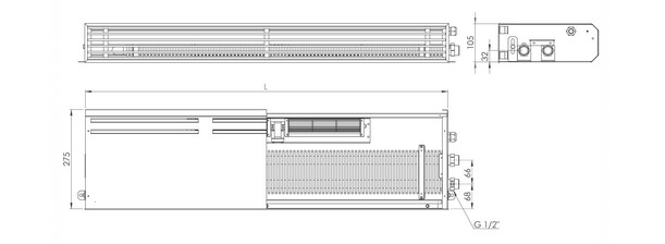
цокольний конвектор DV 105


| Конвектор | Ширина | 275 мм |
|---|---|---|
| Висота | 105 мм | |
| довжина | 750 — 2000 мм з кроком 250 мм. |
|
| решітка тип | поздовжня | |
| решітка матеріал | алюміній | |
| Робочі умови |
Підключення теплоносія |
G 1/2″ |
| Оптимальна робоча температура |
40 — 90°С | |
| Максимальна робоча температура |
105°С | |
| Робочий тиск | 10 бар | |
| Випробувальний тиск | 16 бар |

| Конвектор | теплоносій | ||
|---|---|---|---|
| 90/70°С | 80/60°С | 55/35°С | |
| Теплова потужність, Вт | |||
| 750 | 755 | 544 | 156 |
| 1000 | 1043 | 751 | 216 |
| 1250 | 1423 | 1025 | 294 |
| 1500 | 1820 | 1311 | 376 |
| 1750 | 2217 | 1597 | 459 |
| 2000 | 2616 | 1884 | 541 |