4S Black 110
Внутріпольний водяний конвектор 4S Black 110
- Корпус - пофарбований в чорний колір метал
- природна конвекція
- Мідно-алюмінієвий 4-трубний теплообмінник
- Касетний тип кріплення теплообмінника
- Комплект S - решітка зі знімною рамкою
- Отвори для підключення до системи опалення
- захисні кришки
- антивібраційне кріплення
Основні характеристики
- використовується як теплова завіса у вітражних віконних систем з великою кількістю скління, являє собою основний бар'єр від проникнення холоду в приміщення - теплову потужність конвектора Carrera 4S висота 110мм зручно регулювати, змінюючи температуру теплоносія через конвектор (за допомогою терморегуляторів і сервоприводу)
4S Black (зі знімною рамкою)
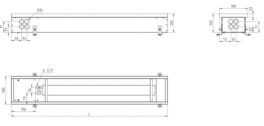
схема
| конвектор | Ширина | 180 мм |
|---|---|---|
| Висота | 110 мм | |
| довжина | 1000 - 3000 мм, з кроком 250 мм | |
| Діапазон регулювання висоти установки |
0 - 40 мм | |
| Решітка - комплект S (ZN, ZL) | поперечна | |
| анодований алюміній, дерево | ||
| робочі умови |
підключення теплоносія | G 1/2 " |
| Оптимальна робоча температура |
40 - 90 ° С | |
| Максимальна робоча температура |
105 ° С | |
| Робочий тиск | 10 бар | |
| Випробувальний тиск | 16 бар |
| Теплова потужність 4S висота 110мм з 1 теплообмінником | ||||||||||||||||||||||||||
| Температура-теплоносія, ° С | Довжина конвектора, мм | |||||||||||||||||||||||||
| 1000 | 1250 | 1500 | 1750 | 2000 | 2250 | 2500 | 2750 | 3000 | ||||||||||||||||||
| Теплова потужність в Вт | ||||||||||||||||||||||||||
| 85-75 ° С | 313 | 434 | 554 | 675 | 796 | 917 | 1037 | тисяча сто п'ятьдесят-вісім | 1279 | |||||||||||||||||
| 65-55 ° С | 209 | 289 | 369 | 450 | 530 | 611 | 691 | 772 | 852 | |||||||||||||||||
| 45-35 ° С | 104 | 144 | 185 | 225 | 265 | 305 | 345 | 385 | 426 | |||||||||||||||||
* Дані по тепловій потужності вказані при t ° приміщення 20 ° С і максимальній швидкості обертання вентиляторів.
ВАРІАНТИ КОРПУСУ конвектори

