SV2 (CV2) Hydro 120
Внутрішньопідлоговий водяний конвектор SV2 (CV2) Hydro 120
- Корпус з нержавіючої сталі
- примусова конвекція
- Мідно-алюмінієвий теплообмінник
- Касетний тип кріплення теплообмінника
- дренажний отвір
- Комплект S - решітка зі знімною рамкою
- Конвектор C - решітка без декоративної рамки
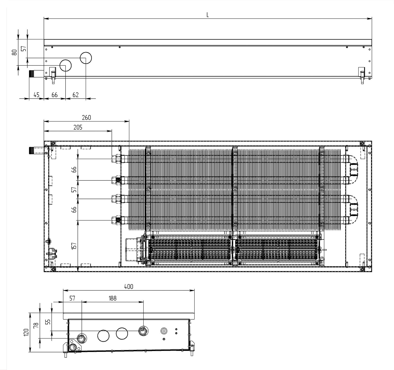
| конвектор | Ширина | 380 мм |
|---|---|---|
| Висота | 120 мм | |
| довжина | 1000 - 3000 мм, з кроком 250 мм | |
| Діапазон регулювання висоти установки |
0 - 40 мм | |
| решітка тип | поперечна, поздовжня | |
| решітка матеріал | анодований алюміній, дерево | |
| робочі умови |
підключення теплоносія | G 1/2 " |
| Оптимальна робоча температура |
40 - 90 ° С | |
| Максимальна робоча температура |
105 ° С | |
| Робочий тиск | 10 бар | |
| Випробувальний тиск | 16 бар |
| конвектор | теплоносій | ||||
|---|---|---|---|---|---|
| 90/70 ° С | 80/60 ° С | 70/50 ° С | 55/35 ° С | 45/35 ° С | |
| Теплова потужність, Вт | |||||
| 1000 | 1523 | 1 101 | 740 | 321 | 216 |
| 1250 | 2079 | 1503 | 1010 | 438 | 294 |
| 1500 | 2660 | тисяча дев'ятсот двадцять три | 1 293 | 560 | 376 |
| 1750 | 3241 | 2343 | 1575 | 682 | 459 |
| 2000 | 3822 | 2763 | тисяча вісімсот п'ятьдесят-сім | 805 | 541 |
| 2250 | 4402 | 3182 | 2139 | 927 | 623 |
| 2500 | 4982 | 3601 | 2421 | 1049 | 705 |
| 2750 | 5567 | 4024 | 2705 | тисячу сто сімдесят-два | 788 |
| 3000 | 6151 | 4446 | 2989 | +1295 | 870 |
* Дані по тепловій потужності вказані при t ° приміщення 20 ° С і швидкості обертання вентиляторів 2300об. / Хв.
** Використовуються в приміщеннях, де можливе попадання води в корпус конвектора або в приміщеннях з підвищеною вологістю (басейни, теплиці, зимові сади, SPA-зони та інші).


