4SV2 Black 110
Внутрішньопідлоговий водяний конвектор 4SV2 Black 110
- Корпус - пофарбований в чорний колір метал
- природна конвекція
- Мідно-алюмінієвий 4-трубний теплообмінник
- Касетний тип кріплення теплообмінника
- Комплект S - решітка зі знімною рамкою
- Отвори для підключення до системи опалення
- захисні кришки
- антивібраційне кріплення
- Вентилятор постійного струму напругою живлення DC24V
ОСНОВНІ ХАРАКТЕРИСТИКИ:
- нові можливості регулювання роботи конвекторів завдяки використанню термостатів з плавним управлінням швидкостями вентиляторів
- збільшені теплові потужності конвекторів завдяки додатково встановленому другому теплообміннику і використовуючи продуктивні вентилятори
- відсутність шуму завдяки антивібраційним вставкам в кріпленні теплообмінника на платформі вентилятора
4SV Black (зі знімною рамкою)
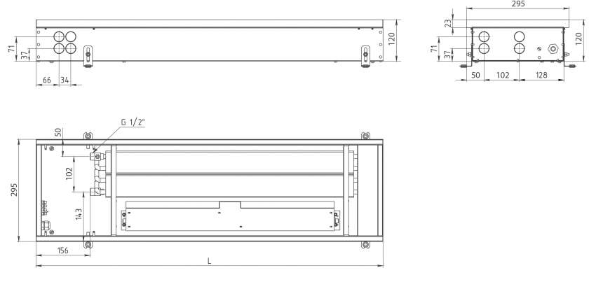
| конвектор | Ширина | 280 мм |
|---|---|---|
| Висота | 110 мм | |
| довжина | 1000 - 3000 мм, з кроком 250 мм | |
| Діапазон регулювання висоти установки |
0 - 40 мм | |
| решітка тип | поперечна | |
| решітка матеріал | анодований алюміній, дерево | |
| робочі умови |
підключення теплоносія | G 1/2 " |
| Оптимальна робоча температура |
40 - 90 ° С | |
| Максимальна робоча температура |
105 ° С | |
| Робочий тиск | 10 бар | |
| Випробувальний тиск | 16 бар |
| 4SV2 110 | Теплова потужність, електроспоживання, шумові показники | ||||||||||||||||||
| Швидкість вентилятора,% | Температура теплоносія, ° С | Довжина конвектора, мм | |||||||||||||||||
| 1000 | 1250 | 1500 | 1750 | 2000 | 2250 | 2500 | 2750 | 3000 | |||||||||||
| Електроспоживання, Вт | 10,0 | 10,0 | 10,0 | 10,0 | 10,0 | 20,0 | 20,0 | 20,0 | 20,0 | ||||||||||
| 30% - 3V | Шумові показники, дБ | 19,8 | 20,2 | 20,6 | 21,9 | 21,9 | 23,2 | 23,6 | 24,0 | 24,3 | |||||||||
| 85-75 ° С | 762 | 1023 | 1284 | 1550 | 1816 | 2077 | 2343 | 2609 | 2875 | ||||||||||
| 65-55 ° С | 543 | 729 | 915 | 1104 | 1294 | 1480 | 1670 | 1859 | 2049 | ||||||||||
| 45-35 ° С | 310 | 416 | 522 | 631 | 739 | 845 | 953 | тисячі шістьдесят-два | 1170 | ||||||||||
| 50% - 5V | Шумові показники, дБ | 25,4 | 26,3 | 27,5 | 27,8 | 27,8 | 28,1 | 28,3 | 28,6 | 29,0 | |||||||||
| 85-75 ° С | 1031 | 1 384 | +1737 | 2097 | 2457 | 2810 | 3170 | 3530 | 3890 | ||||||||||
| 65-55 ° С | 720 | 966 | 1212 | тисяча чотиреста шістьдесят чотири | 1715 | тисячу дев'ятсот шістьдесят-один | 2213 | 2464 | 2715 | ||||||||||
| 45-35 ° С | 404 | 542 | 681 | 822 | 963 | 1 101 | тисячу двісті сорок дві | 1 384 | 1525 | ||||||||||
| 70% - 7V | Шумові показники, дБ | 30,9 | 31,6 | 32,0 | 32,3 | 32,3 | 33,2 | 33,6 | 33,6 | 34,3 | |||||||||
| 85-75 ° С | 1159 | 1556 | тисячу дев'ятсот п'ятьдесят два | 2357 | 2762 | 3159 | 3564 | 3968 | 4373 | ||||||||||
| 65-55 ° С | 792 | 1 063 | тисяча триста тридцять чотири | 1 610 | 1887 | 2158 | 2435 | 2711 | 2988 | ||||||||||
| 45-35 ° С | 452 | 607 | 761 | 919 | одна тисяча сімдесят сім | тисяча двісті тридцять дві | 1390 | 1 547 | +1705 | ||||||||||
| 100% - 10V | Шумові показники, дБ | 40,5 | 42,5 | 43,0 | 44,7 | 44,7 | 45,0 | 45,2 | 45,9 | 46,0 | |||||||||
| 85-75 ° С | 1278 | 1716 | 2154 | 2600 | 3047 | 3485 | 3931 | 4378 | 4824 | ||||||||||
| 65-55 ° С | 907 | 1217 | тисяча п'ятсот двадцять вісім | +1844 | 2161 | 2471 | 2788 | 3105 | 3422 | ||||||||||
| 45-35 ° С | 526 | 706 | 886 | 1070 | +1254 | тисяча чотиреста тридцять чотири | 1618 | 1 802 | 1986 | ||||||||||
* Дані по тепловій потужності вказані при t ° приміщення 20 ° С і максимальній швидкості обертання вентиляторів.
КОМПЛЕКТИ РЕШІТОК
- HI-TECH
- поперечна
- Можливо пофарбувати в будь-який колір палітри
- RAL за індивідуальним замовленням
- WR Дерево поперечна
ZN - рамка забезпечує стандартне закриття стику між покриттям підлоги і конвектором
ZL - рамка забезпечує збільшена відстань перекриття стику між підлогою та конвектором
ВАРІАНТИ КОРПУСУ КОНВЕКТОРА

