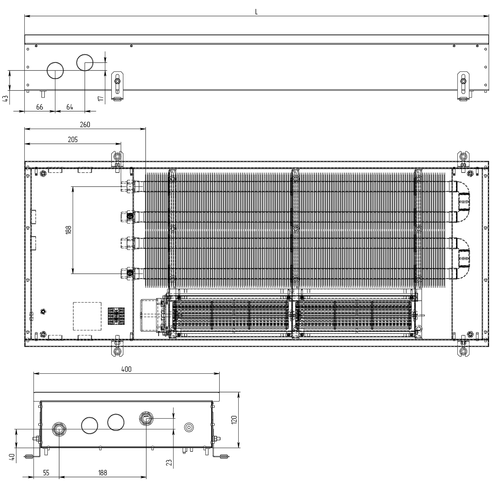
Внутрипольный водяной конвектор SV2 (CV2) Inox/Black 120

* Укомплектованный 2‑х трубным теплообменником из медной трубки диаметром 22мм

* Версия конвектора S комплектуется рамкой с декоративной решеткой в ​​комплекте, по контуру конвектора, для перекрытия стыка между покрытием и корпусом конвектора

* Конвекторы с высотой корпуса 120 мм имеют наибольшие показатели мощности среди всех моделей конвекторов Carrera в естественной конвекции и со встроенным тангенциальным вентилятором DC24

* Усовершенствованное крепление теплообменника кассетного типа позволяет его легко вынимать и обслуживать конвектор

* Исполнение в корпусе с покрашенной нержавеющей стали, а также доступен в корпусе из алюминия толщиной 2мм

* Высокая тепловая мощность, благодаря большой площади теплообмена и продуктивном модульному вентилятора диаметром 60 мм

 

ОСНОВНЫЕ ХАРАКТЕРИСТИКИ:

- тепловая мощность конвектора Carrera SV2 (CV2) 120 увеличена за счет установки дополнительного теплообменника в сочетании с модульным вентилятором увеличенного диаметра 60 мм

- используется усовершенствованное кассета крепления теплообменника, для бесшумной работы конвектора 

 

Внутрипольный конвектор SV2 (CV2) Inox/Black 120

SV2 Inox (со съемной рамкой)

Внутрипольный конвектор Carrera SV2 Inox 120Внутрипольный конвектор Carrera SV2 Inox 120Внутрипольный конвектор Carrera SV2 Inox 120 схема

СV2 Inox (без рамки)

Внутрипольный конвектор Carrera CV2 Inox 120
Внутрипольный конвектор Carrera CV2 Inox 120Внутрипольный конвектор Carrera CV2 Inox 120 схема
  • Корпус из нержавеющей стали
  • Принудительная конвекция
  • Медно-алюминиевый теплообменник
  • Кассетный тип крепления теплообменника
  • Комплект S — решетка со съемной рамкой
  • Конвектор C — решетка без рамки
  • Тангенциальным вентилятором DC24
  • Комплект S Hi-Tech (решетка + съемная рамка
  • Отверстия для подключения к системе отопления
  • Защитные крышки
  • закрепляющие кронштейны

SV2 Black (со съемной рамкой)

Внутрипольный конвектор Carrera SV2 Black 120Внутрипольный конвектор Carrera SV2 Black 120Внутрипольный конвектор Carrera SV2 Black 120 схема

СV2 Black (без рамки)

Внутрипольный конвектор Carrera CV2 Black 120Внутрипольный конвектор Carrera CV2 Black 120Внутрипольный конвектор Carrera CV2 Black 120 схема
  • Корпус — окрашенный в черный цвет металл
  • Принудительная конвекция
  • Медно-алюминиевый теплообменник
  • Кассетный тип крепления теплообменника
  • Комплект S — решетка со съемной рамкой
  • Конвектор C — решетка без рамки
  • Тангенциальным вентилятором DC24
  • Комплект S Hi-Tech (решетка + съемная рамка
  • Отверстия для подключения к системе отопления
  • Защитные крышки
  • закрепляющие кронштейны
Конвектор Ширина 400 мм
  Высота 120 мм
  Длина 1000 — 3000 мм, с шагом 250 мм
  Диапазон регулировки
высоты установки
0 — 40 мм
  Решетка тип поперечная, продольная
  Решетка материал анодированный алюминий, дерево
Рабочие
условия
Подключение теплоносителя G 1/2″
  Оптимальная рабочая
температура
40 — 90°С
  Максимальная рабочая
температура
105°С
  Рабочее давление 10 бар
  Испытательное давление 16 бар
СV2 / SV2 120
Тепловая мощность, электропотребление, шумовые показатели
Скорость вентилятора,%
температура
теплоносителя, ° С
Длина конвектора, мм
  1000 1250 1500 1750 2000 2250 2500 2750 3000
  Электропотребления, Вт 30,0 30,0 30,0 30,0 30,0 60,0 60,0 60,0 60,0
30 % - 3V
Шумовые показатели, дБ 20,0 20,2 21,6 22,2 22,2 22,5 22,8 23,0 23,5
  85-75°С 1011 1402 1792 2183 2574 2971 3362 3752 4143
  65-55°С 664 921 1178 1434 1691 1952 2208 2465 2722
  45-35°С 386 535 685 834 983 1135 1284 1433 1582
50% - 5V
Шумовые показатели, дБ 27,4 29,7 31,7 33,0 33,0 35,2 35,7 36,3 37,0
  85-75°С 1513 2098 2683 3268 3853 4447 5032 5617 6202
  65-55°С 971 1347 1722 2098 2473 2854 3230 3605 3981
  45-35°С 596 827 1057 1288 1518 1752 1983 2213 2443
70% - 7V
Шумовые показатели, дБ 34,7 37,9 41,1 42,0 42,0 42,4 44,0 45,1 45,6
  85-75°С 1899 2634 3368 4102 4836 5582 6316 7050 7784
  65-55°С 1275 1768 2260 2753 3246 3747 4239 4732 5225
  45-35°С 729 1011 1293 1575 1857 2143 2425 2707 2989
100% - 10V
Шумовые показатели, дБ 45,4 48,3 48,6 49,6 49,6 50,2 51,3 52,0 52,4
  85-75°С 2306 3198 4089 4981 5872 6778 7669 8560 9452
  65-55°С 1508 2091 2673 3256 3839 4431 5014 5597 6179
  45-35°С 880 1220 1561 1901 2241 2587 2927 3267 3607

*Данные по тепловой мощности указаны при t° помещения 20°С и скорости вращения вентиляторов 2300об./мин.

 

КОМПЛЕКТЫ РЕШЕТОК

  • HI-TECH
  • поперечная
  • Возможно покрасить в любой цвет палитры
  • RAL по индивидуальному заказу
  • WR Дерево поперечная

 Рамки

zn ZN - рамка обеспечивает стандартное закрытия стыка между покрытием пола и конвектором

zl ZL - рамка обеспечивает увеличенное расстояние перекрытия стыка между полом и конвектором

ВАРИАНТЫ КОРПУСА КОНВЕКТОРА

blackinoxalum

Рассылка

 

logo is ua

 

(093) 185-28-21

    maxim@budova.org

График работы

ПН-ПТ - з 9:30 до 20:00

СБ-ВС - Выходной